Villa singola in vendita

Trezzano Sul Naviglio, Via Paolo Sarpi
€ 477.000
5 locali 5 locali
236 Mq 236 Mq
3 bagni 3 bagni

Villa singola in vendita

Trezzano Sul Naviglio, Via Paolo Sarpi

Descrizione annuncio

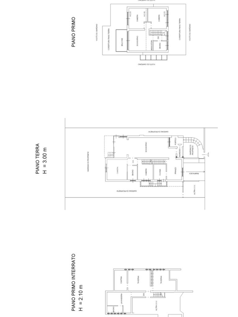
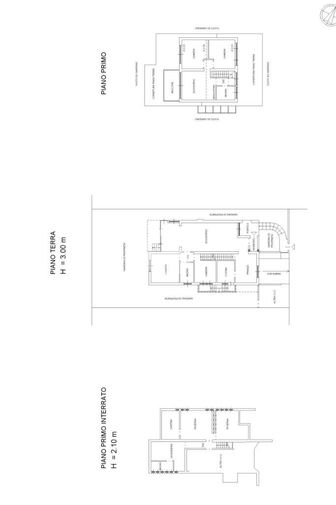
Nel cuore del Boschetto, una delle zone residenziali e riservate di Trezzano sul Naviglio, proponiamo in vendita la nuda proprietà di una villa indipendente dal fascino autentico, circondata da tranquillità e privacy. La villa è inserita in un contesto ordinato e signorile, con cancelletto basso fronte strada, che dona un senso di apertura e armonia con il quartiere, pur garantendo riservatezza e sicurezza. L’abitazione si sviluppa su più livelli ed è caratterizzata da ambienti luminosi, ben distribuiti e funzionali.
Al piano principale troviamo: ingresso, sala da pranzo, cucina con accesso al giardino, soggiorno ampio e luminoso, veranda, disimpegno con accesso al giardino, camera matrimoniale, bagno, camera / studio. Al piano superiore attualmente è stato creato un appartamento composto da: disimpegno, bagno finestrato con vasca, soggiorno con affaccio su ampio balcone e due camere da letto spaziose e luminose, con soffitti impreziositi da travi a vista che conferiscono carattere e un’atmosfera intima alla casa.. Dalla sala da pranzo si accede al piano interrato composto da: corridoio, box, taverna, lavanderia con bagno e cantina.

Completa la soluzione un posto auto e un giardino privato su quattro lati.

La villa si presenta in buone condizioni manutentive ed esprime tutto il fascino delle abitazioni indipendenti, a pochi minuti da tutti i servizi, scuole, mezzi di collegamento.

La vendita avviene esclusivamente come Nuda Proprietà. I proprietari attuali manterranno il diritto di abitazione per tutta la durata della loro vita.
Si tratta quindi di una soluzione ideale per investitori o per chi desidera pianificare un acquisto patrimoniale nel medio-lungo periodo, con un importante vantaggio economico rispetto al valore di mercato della piena proprietà.

Ogni agenzia ha un proprio titolare ed è autonoma – Le presenti informazioni non costituiscono elemento contrattuale.

Mostra tutto

Nelle vicinanze

Trasporto pubblico Trasporto pubblico
Via Marconi-Via Piero della Francesca
Via Marconi-Via Piero della Francesca
600 m
Via Buonarroti-Via Marconi
Via Buonarroti-Via Marconi
650 m
stazione di Trezzano sul Naviglio
stazione di Trezzano sul Naviglio
1,4 Km
Gaggiano
Gaggiano
1,8 Km
Ricariche auto elettriche Ricariche auto elettriche
Parcheggio IKEA Corsico
2,5 Km
IKEA Corsico
2,6 Km
Europa Shopping Center fronte Tigros
2,7 Km
Europa Shopping Center fronte Pittarosso
2,9 Km
Scuole Scuole
Scuola primaria Boschetto
50 m
Centro Linguistico Europeo
780 m
British Institute
1,0 Km
Scuola Primaria "Mauro Brutto"
1,1 Km
Scuola Media "Piero Gobetti"
1,2 Km
Farmacia Farmacia
Farmacia Borsari
370 m
Farmacia Zingone
1,2 Km
Farmacia Comunale 1
1,2 Km
Farmacia Morona
1,3 Km
Farmacia
1,6 Km
Supermercati Supermercati
LIDL
770 m
EuroSpin
900 m
Unes U2
970 m
Iperdì
1,4 Km
Punto Simply
1,5 Km
Negozi Negozi
Negozi
200 m
PanCaffè
370 m
Aemme
580 m
CZ Store
940 m
Bazar Gaggiano
1,0 Km
Bar Bar
Le Bistrot
850 m
Blue Club
910 m
Las Vegas
940 m
Ronny Bar
1,0 Km
Piccolo Kristal
1,1 Km
Ristoranti Ristoranti
Trattoria da Vittoria
590 m
Mapi
600 m
Pizzeria Il Nonnino
1,0 Km
Km.0
1,0 Km
Casa Lara
1,1 Km
Mostra tutto

Caratteristiche

Rif.:
61162391
Piano:
3 di 3 (Piano terra con giardino)
Box:
1
Posti auto:
1
Balconi:
1
Camere da letto:
4
Mostra tutto
Prezzo Prezzo
€ 477.000
Rata mutuo Rata mutuo
€ 2.266 / mese
Spese annue Spese annue
€ 0
Proponi il tuo prezzoProponi il tuo prezzo

Classe Energetica

E
E
E
E
E
E
E
E
E
EP invernale del fabbricato:
EP estiva del fabbricato:
Anno di costruzione:
1972
Riscaldamento:
Autonomo
Tipo impianto:
A radiatori
Tipo alimentazione:
Metano

Ti interessa visionare l'immobile?

Fissa un appuntamento  Fissa un appuntamento

Richiedi informazioni

Clicca su Leggi per aprire l'informativa
* Questi campi sono obbligatori

Calcola il tuo mutuo

Semplice e senza impegno
Anticipo

( % )
Mutuo

( % )

pochi semplici passi

inserisci i tuoi dati
Questionario completato
Grazie per aver richiesto un appuntamento senza impegno con un nostro Consulente del Credito e Assicurativo.

Hai inserito correttamente tutti i dati necessari e a breve riceverai una e-mail con un link da convalidare per inviare i tuoi dati.
Affiliato
Studio Garibaldi 2023 Srl
Viale Indipendenza, 22 20090 Trezzano Sul Naviglio (MI)

Il nostro staff


  • Antonio Capurso
    Collaboratore

  • Cristina Glavan
    Coordinatrice

  • Valentina Pozzi
    Coordinatrice

  • Davide De Padova
    Affiliato
Viale Indipendenza, 22 20090 Trezzano Sul Naviglio (MI)
Zona: Trezzano Sul Naviglio
Mostra su mappa
Orari: Dal Lunedi al Venerdì dalle 9.00 alle 12.30 dalle 14.30 alle 20.00 Sabato dalle 9.30 alle 18.00
Affiliato
Studio Garibaldi 2023 Srl
Viale Indipendenza, 22 20090 Trezzano Sul Naviglio (MI)

2026 Tecnocasa Franchising S.p.A. - P. IVA 08365160152 - Via Monte Bianco 60/A 20089 Rozzano (MI). Ogni agenzia ha un proprio titolare ed è autonoma. Privacy policy | Policy utilizzo | Cookie policy