Monolocale in vendita

Trezzano Sul Naviglio, Via Leonardo Da Vinci
€ 108.000
1 locale 1 locale
38 Mq 38 Mq
1 bagno 1 bagno

Monolocale in vendita

Trezzano Sul Naviglio, Via Leonardo Da Vinci

Descrizione annuncio

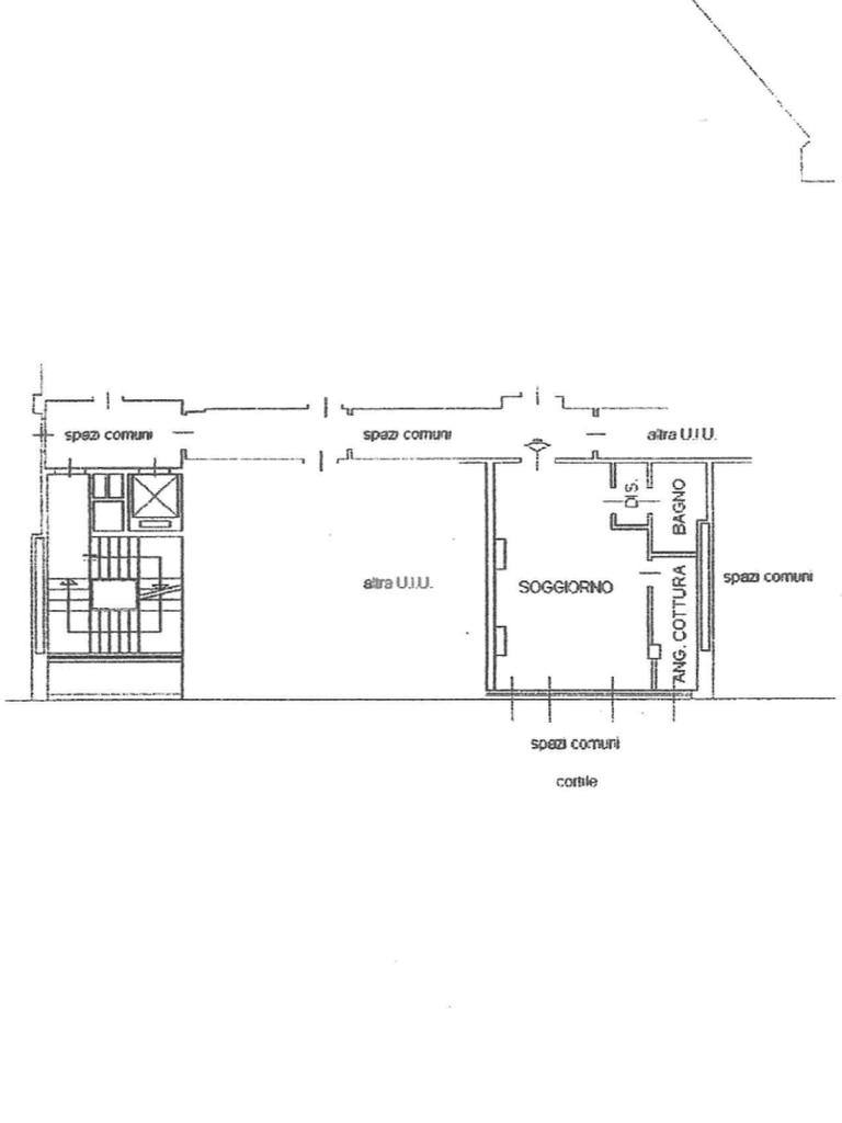
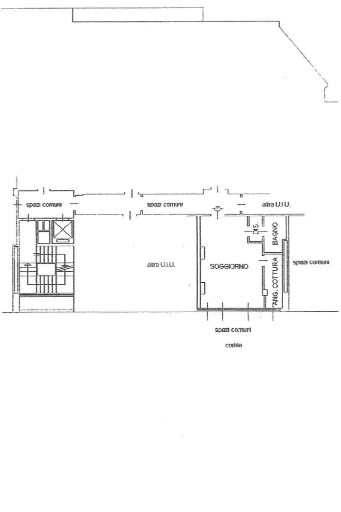
In vendita – Monolocale in zona Zingone

All’ingresso si accede a un luminoso ambiente open space adibito a soggiorno e camera da letto, cuore dell’abitazione, con cucinotto separato e funzionale. Completa la proprietà un bagno dotato di box doccia.

L’immobile si trova nel cuore del quartiere Zingone, in una posizione centrale e ben servita: fermata dell’autobus, farmacia, banca, scuole, parco e supermercati sono tutti comodamente raggiungibili a piedi.

Una soluzione ideale per chi desidera praticità e comfort in una zona strategica, perfetta sia come abitazione principale sia come investimento.

Ogni agenzia ha un proprio titolare ed è autonoma. Le presenti informazioni non costituiscono elemento contrattuale.

Mostra tutto

Nelle vicinanze

Trasporto pubblico Trasporto pubblico
Trasporto pubblico
710 m
Via Petrarca
Via Petrarca
1,9 Km
Ricariche auto elettriche Ricariche auto elettriche
Europa Shopping Center fronte Pittarosso
390 m
Europa Shopping Center fronte Tigros
520 m
Settimo Milanese Keplero | EnelX
2,7 Km
Scuole Scuole
Scuola secondaria di 1° grado "Giovanni Pascoli"
880 m
Scuole
910 m
Scuola primaria "Giovanni Pascoli"
920 m
Country Language School
970 m
Scuola Media "Piero Gobetti"
2,0 Km
Farmacia Farmacia
Farmacia Cusago
900 m
Parafarmacia Dottoressa Grassi
960 m
Farmacia Morona
1,9 Km
Farmacia Zingone
2,7 Km
Farmacia
2,8 Km
Supermercati Supermercati
Supermercati
460 m
Pozzoli Big Market
2,4 Km
Punto Simply
2,7 Km
Nat&Bio
2,8 Km
Iperdì
2,8 Km
Negozi Negozi
Belli e Firmati
310 m
Negozi
360 m
OVS
440 m
Twister Megastore
490 m
Le Fate e i Folletti
970 m
Bar Bar
Bar
1,0 Km
Moon Light
2,3 Km
Adriano's
2,3 Km
Bar Centrale
2,6 Km
Piccolo Kristal
2,6 Km
Ristoranti Ristoranti
Appalosa
310 m
Tourlé
430 m
Da Orlando
940 m
Brindo by Orlando
940 m
Caffè della Posteria
960 m
Mostra tutto

Caratteristiche

Rif.:
61116670
Piano:
1 di 8 con ascensore (Piano basso)
Camere da letto:
1
Arredamento:
Parziale
Condizionamento:
Assente
Ascensore:
Mostra tutto
Prezzo Prezzo
€ 108.000
Rata mutuo Rata mutuo
€ 496 / mese
Spese annue Spese annue
€ 1.500
Proponi il tuo prezzoProponi il tuo prezzo

Altre caratteristiche

Classe Energetica

E
E
E
E
E
E
E
E
E
EP globale non rinnovabile:
80.62 kW h/m² anno
EP globale rinnovabile:
0.00 kW h/m² anno
EP invernale del fabbricato:
EP estiva del fabbricato:
Anno di costruzione:
1995
Riscaldamento:
Centralizzato
Tipo impianto:
A radiatori
Tipo alimentazione:
Metano

Ti interessa visionare l'immobile?

Fissa un appuntamento  Fissa un appuntamento

Richiedi informazioni

* Questi campi sono obbligatori

Calcola il tuo mutuo

Semplice e senza impegno
Anticipo

( % )
Mutuo

( % )

pochi semplici passi

inserisci i tuoi dati
Questionario completato
Grazie per aver richiesto un appuntamento senza impegno con un nostro Consulente del Credito e Assicurativo.

Hai inserito correttamente tutti i dati necessari e a breve riceverai una e-mail con un link da convalidare per inviare i tuoi dati.
Affiliato
Studio Garibaldi 2023 Srl
Viale Indipendenza, 22 20090 Trezzano Sul Naviglio (MI)

Il nostro staff


  • Cristina Glavan
    Coordinatrice

  • Davide De Padova
    Affiliato
Viale Indipendenza, 22 20090 Trezzano Sul Naviglio (MI)
Zona: Trezzano Sul Naviglio
Mostra su mappa
Orari: Dal Lunedi al Venerdì dalle 9.00 alle 12.30 dalle 14.30 alle 20.00 Sabato dalle 9.30 alle 18.00
Affiliato
Studio Garibaldi 2023 Srl
Viale Indipendenza, 22 20090 Trezzano Sul Naviglio (MI)

2025 Tecnocasa Franchising S.p.A. - P. IVA 08365160152 - Via Monte Bianco 60/A 20089 Rozzano (MI). Ogni agenzia ha un proprio titolare ed è autonoma. Privacy policy | Policy utilizzo | Cookie policy